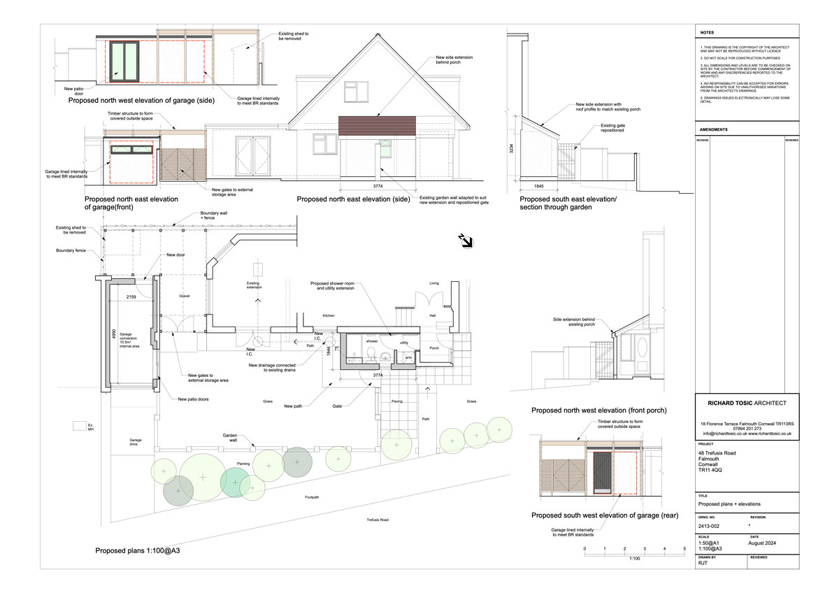
External alterations to house Falmouth

This is a small project to assist the owner with several small interventions to an existing property in Falmouth. These include a garage conversion, a shower room extension and organisation of external storage space to the rear garden.