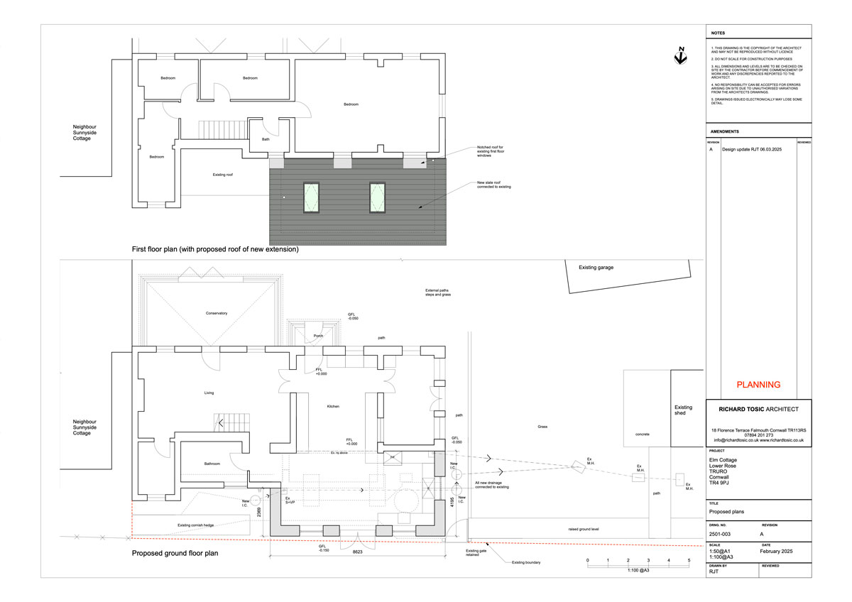
This project involves an extension to an existing property near Goonhavern. The existing cottage has been extended and changed over the years, and this is another alteration to meet the current lifestyle requirements of the owner.
House extension Lower Rose
